Espace propriétaire
fr

Votre recherche

Lyon (69001)

2 pièces - 66,78 m²

LYON 1- "4 Rue Coustou" Grand T2 (67m2 Carrez) au calme en coeur d'îlot

285 000 €
Ref : 200
A propos de ce bien

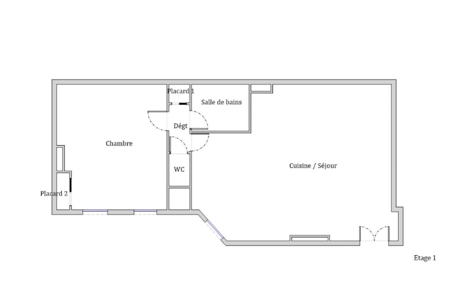
LYON 1- Pentes Croix Rousse " 4 rue Coustou" . Appartement 2 pièces en plein coeur des pentes de la Croix Rousse proche du métro( croix Paquet) , ttes commodités à proximité ( écoles, transports, commerces) d'une surface de 67m2 Carrez en bon état d'usage et d'entretien.

 

Ce que nous avons aimé:

 

- Immeuble Ancien en bon état avec ascenseur

- Emplacement prisé au coeur des pentes de la Croix Rousse

- Appartement en coeur d'îlot au calme bénéficiant d'une pièce de vie spacieuse ( cuisine US) et d'une grande Chambre séparée avec rangements.

- Beaucoup de potentiel, beaux volumes

 

Contact téléphonique de préférence svp pour plus de réactivité. Dossier complet, photos, vidéos sur demande. Prix: 285.000 euros honoraires incluses à la charge du vendeur. Contact Julien Duvert Bureau Sully / 0618645232.

Bien soumis au régime de la copropriété, pas procédure en cours, nombre de lot total 13, montant annuel des charges / 1234 euros

Descriptif de ce bien
Général
Code postal 69001
Surface loi Carrez (m²) 66,78 m²
Nombre de chambre(s) 1
Nombre de pièces 2
Etage 1
Nombre de niveaux 1
Ascenseur OUI
Vue En coeur d'îlot / Au calme
Détails
Nb de salle de bains 1
Cuisine Américaine
Mode de chauffage Gaz
Type de chauffage Radiateur
Format de chauffage Individuel
Balcon NON
Terrasse NON
Cave NON
Exposition Ouest
Année de construction 1900
Financier
Prix de vente 285 000 €
Les honoraires d'agence seront intégralement à la charge du vendeur  
Charges 102 €
Energie
DPE GES
Autour du bien
  • Commerces et santé
  • Loisirs
  • Ecoles
  • Transports
  • Pratique
Contacter pour ce bien
L'agence

Guillaume TAMBON


Téléphone 06 30 77 29 48
Adresse
129 rue Vendome 69006 Lyon

Julien DUVERT


Téléphone 006 18 64 52 32
Adresse
129 rue Vendome 69006 Lyon

* Champ obligatoire

Les informations recueillies sur ce formulaire sont enregistrées dans un fichier informatisé par La Boite Immo agissant comme Sous-traitant du traitement pour la gestion de la clientèle/prospects de l'Agence / du Réseau qui reste Responsable du Traitement de vos Données personnelles. La base légale du traitement repose sur l'intérêt légitime de l'Agence / du Réseau. Elles sont conservées jusqu'à demande de suppression et sont destinées à l'Agence / au Réseau. Conformément à la loi « informatique et libertés », vous disposez des droits d’accès, de rectification, d’effacement, d’opposition, de limitation et de portabilité de vos données. Vous pouvez retirer votre consentement à tout moment en contactant directement l’Agence / Le Réseau. Consultez le site https://cnil.fr/fr pour plus d’informations sur vos droits. Si vous estimez, après avoir contacté l'Agence / le Réseau, que vos droits « Informatique et Libertés » ne sont pas respectés, vous pouvez adresser une réclamation à la CNIL. Nous vous informons de l’existence de la liste d'opposition au démarchage téléphonique « Bloctel », sur laquelle vous pouvez vous inscrire ici : https://www.bloctel.gouv.fr Dans le cadre de la protection des Données personnelles, nous vous invitons à ne pas inscrire de Données sensibles dans le champ de saisie libre.
Ce site est protégé par reCAPTCHA, les Politiques de Confidentialité et les Conditions d'Utilisation de Google s'appliquent.

Découvrir nos outils