Espace propriétaire
fr

Votre recherche

Lyon (69003)

3 pièces - 70,01 m²

LYON 3 / Appartement Rez de Jardin T3 en coeur d'îlot, Garage, Cave

320 000 €
Ref : 184B.
A propos de ce bien

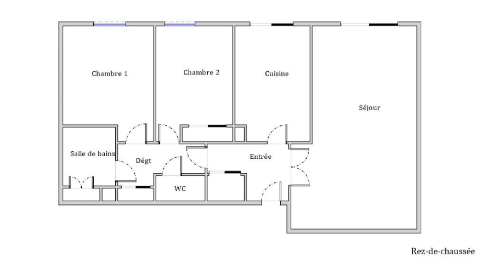
LYON 3 / "48 Rue RICHERAND": Les Jardins D'Orsay. Très bel appartement T3 en rez-de-jardin, idéalement situé dans un secteur résidentiel calme, à proximité immédiate de la gare de la Part Dieu disposant d'un garage box fermé en sous-sol + cave.


Niché dans une résidence de standing, sécurisée entourée d'espaces verts, cet appartement offre un cadre de vie agréable et familial sans la moindre nuisance.


Pièce de vie spacieuse, lumineuse et fonctionnelle ( plein sud) ouvrant sur une grande terrasse à vivre (privative en coeur d'îlot au calme ) . La cuisine pouvant s'ouvrir sur la pièce principale avec quelques travaux de convenance. L'espace nuit comprend 2 chambres confortables et intimistes ainsi qu'une salle d'eau + wc séparé. L'ensemble est en bon état d'usage et d'entretien.


Prix: 320.000 euros honoraires inclus à la charge du vendeur. Contact Julien DUVERT Bureau Sully o6-18-64-52-32. Bien soumis au régime de la copropriété, nb total de lots: 100, montant annuel de charges: 1140 euros, pas de procédure en cours.

Descriptif de ce bien
Général
Code postal 69003
Surface loi Carrez (m²) 70 m²
Nombre de chambre(s) 2
Nombre de pièces 3
Nombre de niveaux 1
Ascenseur OUI
Vue En coeur d'îlot / Au calme
Détails
Nb de salle d'eau 1
Cuisine Séparée
Type de cuisine SEMI-EQUIPEE
Mode de chauffage Electrique
Type de chauffage Radiateur
Format de chauffage Individuel
Interphone OUI
Terrasse OUI
Nombre de garage 1
Cave OUI
Surface cave (m²) 2.94
Exposition Sud
Année de construction 1990
Financier
Prix de vente 320 000 €
Les honoraires d'agence seront intégralement à la charge du vendeur  
Charges 95 €
Energie
DPE GES
Autour du bien
  • Commerces et santé
  • Loisirs
  • Ecoles
  • Transports
  • Pratique
Contacter pour ce bien
L'agence

Guillaume TAMBON


Téléphone 06 30 77 29 48
Adresse
129 rue Vendome 69006 Lyon

Julien DUVERT


Téléphone 006 18 64 52 32
Adresse
129 rue Vendome 69006 Lyon

* Champ obligatoire

Les informations recueillies sur ce formulaire sont enregistrées dans un fichier informatisé par La Boite Immo agissant comme Sous-traitant du traitement pour la gestion de la clientèle/prospects de l'Agence / du Réseau qui reste Responsable du Traitement de vos Données personnelles. La base légale du traitement repose sur l'intérêt légitime de l'Agence / du Réseau. Elles sont conservées jusqu'à demande de suppression et sont destinées à l'Agence / au Réseau. Conformément à la loi « informatique et libertés », vous disposez des droits d’accès, de rectification, d’effacement, d’opposition, de limitation et de portabilité de vos données. Vous pouvez retirer votre consentement à tout moment en contactant directement l’Agence / Le Réseau. Consultez le site https://cnil.fr/fr pour plus d’informations sur vos droits. Si vous estimez, après avoir contacté l'Agence / le Réseau, que vos droits « Informatique et Libertés » ne sont pas respectés, vous pouvez adresser une réclamation à la CNIL. Nous vous informons de l’existence de la liste d'opposition au démarchage téléphonique « Bloctel », sur laquelle vous pouvez vous inscrire ici : https://www.bloctel.gouv.fr Dans le cadre de la protection des Données personnelles, nous vous invitons à ne pas inscrire de Données sensibles dans le champ de saisie libre.
Ce site est protégé par reCAPTCHA, les Politiques de Confidentialité et les Conditions d'Utilisation de Google s'appliquent.

Découvrir nos outils