Espace propriétaire
fr

Votre recherche

Lyon (69007)

1 pièces - 30,47 m²

LYON 7/ Eglise St André -Piscine du Rhône- Beau Studio au calme sur Cour privative sécurisée

159 000 €
Ref : 702
A propos de ce bien

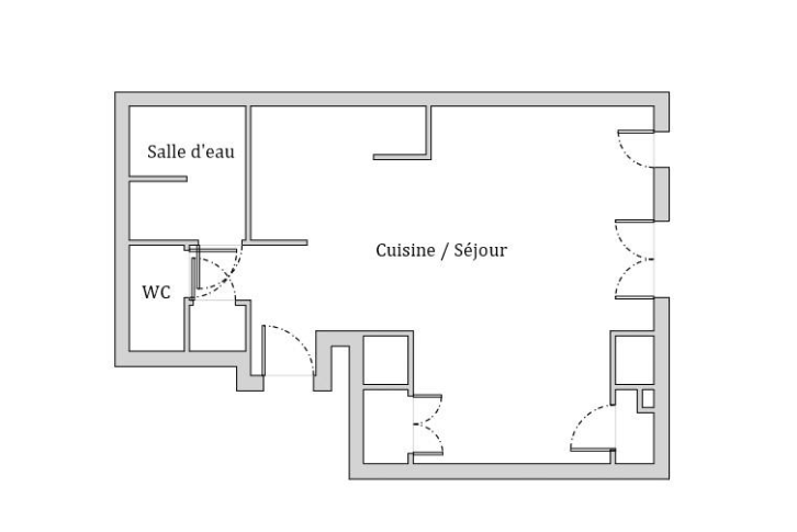
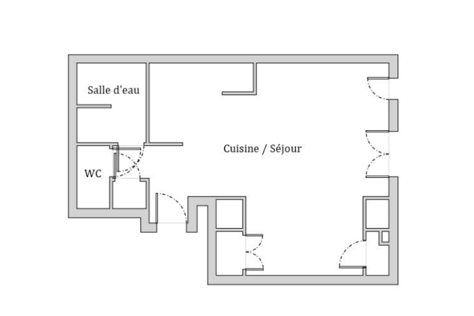
LYON 7: "Eglise St André"- Piscine du Rhône. Fac Lyon 2. Au pied du Tram "St André" Ttes commodités à proximité ( écoles, transports, commerces). Joli Studio moderne en très bon état évoluant au sein d'un petit immeuble et situé au calme sur cour intérieure sécurisée.

Ce Studio bénéficie d'une pièce de vie particulièrement conviviale et fonctionnelle. et agrémentée d'un coin cuisine US. Une salle d'eau + wc ainsi qu'un grand placard de rangements complètent la distribution des lieux. Contact téléphonique de préférence svp pour plus de réactivité. Visite vidéo sur demande.

Prix: 159.000 euros honoraires inclus à la charge du vendeur. Contact Julien DUVERT Bureau Sully 0618645232. Sms ou appel de préférence. Dossier complet sur demande et Visite vidéo. Bien soumis au régime de la copropriété, pas de procédure en cours, nb total de lots: 55, montant annuel des charges: 600 euros.

Descriptif de ce bien
Général
Code postal 69007
Surface loi Carrez (m²) 30,47 m²
Nombre de chambre(s) 1
Nombre de pièces 1
Nombre de niveaux 1
Ascenseur OUI
Vue En coeur d'îlot / Au calme sur Cour sécurisée
Détails
Nb de salle d'eau 1
Cuisine Américaine
Mode de chauffage Electrique
Type de chauffage Radiateur
Format de chauffage Individuel
Exposition Est
Année de construction 2000
Financier
Prix de vente 159 000 €
Les honoraires d'agence seront intégralement à la charge du vendeur  
Charges 50 €
Energie
DPE GES
Autour du bien
  • Commerces et santé
  • Loisirs
  • Ecoles
  • Transports
  • Pratique
Contacter pour ce bien
L'agence

Guillaume TAMBON


Téléphone 06 30 77 29 48
Adresse
129 rue Vendome 69006 Lyon

Julien DUVERT


Téléphone 006 18 64 52 32
Adresse
129 rue Vendome 69006 Lyon

* Champ obligatoire

Les informations recueillies sur ce formulaire sont enregistrées dans un fichier informatisé par La Boite Immo agissant comme Sous-traitant du traitement pour la gestion de la clientèle/prospects de l'Agence / du Réseau qui reste Responsable du Traitement de vos Données personnelles. La base légale du traitement repose sur l'intérêt légitime de l'Agence / du Réseau. Elles sont conservées jusqu'à demande de suppression et sont destinées à l'Agence / au Réseau. Conformément à la loi « informatique et libertés », vous disposez des droits d’accès, de rectification, d’effacement, d’opposition, de limitation et de portabilité de vos données. Vous pouvez retirer votre consentement à tout moment en contactant directement l’Agence / Le Réseau. Consultez le site https://cnil.fr/fr pour plus d’informations sur vos droits. Si vous estimez, après avoir contacté l'Agence / le Réseau, que vos droits « Informatique et Libertés » ne sont pas respectés, vous pouvez adresser une réclamation à la CNIL. Nous vous informons de l’existence de la liste d'opposition au démarchage téléphonique « Bloctel », sur laquelle vous pouvez vous inscrire ici : https://www.bloctel.gouv.fr Dans le cadre de la protection des Données personnelles, nous vous invitons à ne pas inscrire de Données sensibles dans le champ de saisie libre.
Ce site est protégé par reCAPTCHA, les Politiques de Confidentialité et les Conditions d'Utilisation de Google s'appliquent.

Découvrir nos outils