Espace propriétaire
fr
Lyon (69008)

3 pièces - 67,02 m²

LYON 3 /secteur

317 000 €
Ref : 690081
A propos de ce bien

Exclusivité : LYON 3 / Quartier SANS SOUCI proche Parc Sisley / MONPLAISIR " Rue Prof Sisley /MontBrillant - Transport (Bus / tram et métro), commerces et écoles/crèches à proximité.

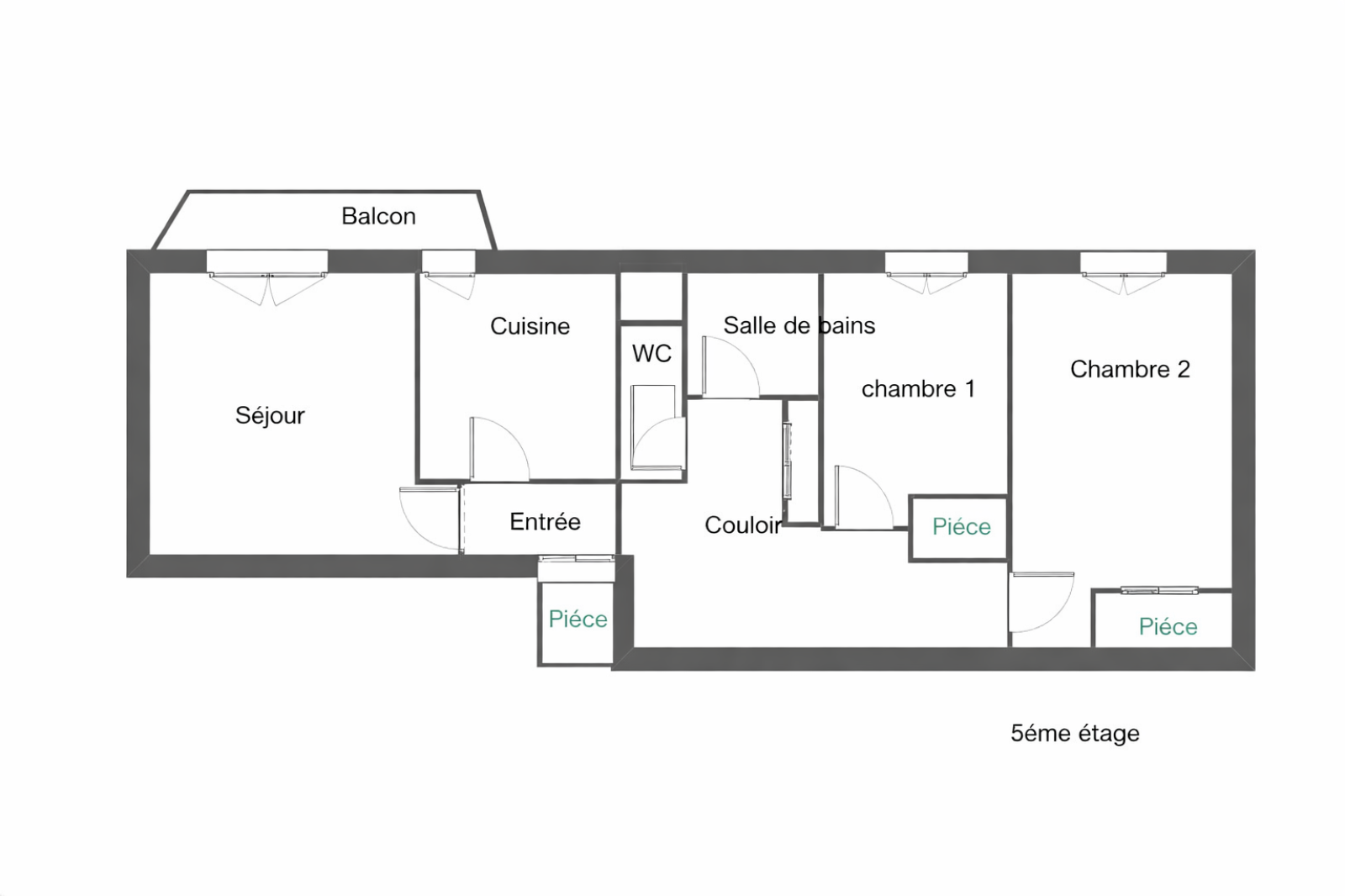
Edifié au sein de la résidence "LES TRIADES", bel appartement T3 (67,02 m2 Carrez) baigné de lumière au 5ème et dernier étage, climatisé avec ascenceur bénéficiant d'un balcon de 4,5m2 vue dégagée ( Fourvière).

Ce que nous avons aimé :

- Copropriété au calme, dans un quartier résidentiel agréable et convivial (proche Monplaisir)

- Dernier étage avec balcon de 4,5m2 plein Sud avec vue dégagée sans vis à vis.

- Configuration fonctionnelle : 2 espaces distincts jour/nuit

- Bel espace de vie avec un grand séjour (20m2) qui s'accompagne d'une cuisine séparée mais connectée par une verrière qui laisse circuler la lumière.

- Espace nuit confortable: 2 belles chambres , rangements, salle de bain fonctionnelle, wc séparé

- Parking en sous sol inclus + cave. Possibilité d'acquerir une 2 ème place de parking privée et sécurisée exterieur en sus du prix.

- L'appartement est entièrement climatisé

Prix : 317 000 euros honoraires inclus à la charge du vendeur. Contact Julien Duvert Bureau Sully 06.18.64.52.32 . Appel ou SMS de préférence pour plus de réactivité.

Bien soumis au régime de la copropriété, pas de procédure en cours, nb total de lots: 57 / Montant annuel des charges 1800 euros

Descriptif de ce bien
Général
Code postal 69008
Surface loi Carrez (m²) 67,02 m²
Nombre de chambre(s) 2
Nombre de pièces 3
Etage 5
Ascenseur OUI
Vue dégagée
Détails
Nb de salle de bains 1
Cuisine Séparée
Type de cuisine Equipée
Mode de chauffage Electrique
Type de chauffage Convecteur
Format de chauffage Individuel
Interphone OUI
Visiophone OUI
Balcon OUI
Nombre de garage 1
Cave OUI
Nombre de parking 1
Surface cave (m²) 4.65
Exposition Sud
Année de construction 1990
Financier
Prix de vente 317 000 €
Les honoraires d'agence seront intégralement à la charge du vendeur  
Charges 150 €
Taxe foncière annuelle 1 112 €
Energie
DPE GES
Autour du bien
  • Commerces et santé
  • Loisirs
  • Ecoles
  • Transports
  • Pratique
Contacter pour ce bien
L'agence

Guillaume TAMBON


Téléphone 06 30 77 29 48
Adresse
129 rue Vendome 69006 Lyon

Julien DUVERT


Téléphone 006 18 64 52 32
Adresse
129 rue Vendome 69006 Lyon

* Champ obligatoire

Les informations recueillies sur ce formulaire sont enregistrées dans un fichier informatisé par La Boite Immo agissant comme Sous-traitant du traitement pour la gestion de la clientèle/prospects de l'Agence / du Réseau qui reste Responsable du Traitement de vos Données personnelles. La base légale du traitement repose sur l'intérêt légitime de l'Agence / du Réseau. Elles sont conservées jusqu'à demande de suppression et sont destinées à l'Agence / au Réseau. Conformément à la loi « informatique et libertés », vous disposez des droits d’accès, de rectification, d’effacement, d’opposition, de limitation et de portabilité de vos données. Vous pouvez retirer votre consentement à tout moment en contactant directement l’Agence / Le Réseau. Consultez le site https://cnil.fr/fr pour plus d’informations sur vos droits. Si vous estimez, après avoir contacté l'Agence / le Réseau, que vos droits « Informatique et Libertés » ne sont pas respectés, vous pouvez adresser une réclamation à la CNIL. Nous vous informons de l’existence de la liste d'opposition au démarchage téléphonique « Bloctel », sur laquelle vous pouvez vous inscrire ici : https://www.bloctel.gouv.fr Dans le cadre de la protection des Données personnelles, nous vous invitons à ne pas inscrire de Données sensibles dans le champ de saisie libre.
Ce site est protégé par reCAPTCHA, les Politiques de Confidentialité et les Conditions d'Utilisation de Google s'appliquent.

Découvrir nos outils