Espace propriétaire
fr

Votre recherche

Belleville-en-Beaujolais (69220)

4 pièces - 115 m²

Maison 115 m 2 habitables 4 pièces parfait état 12 mn de la gare SNCF de Belleville en Beaujolais

259 000 €
Ref : abcdef238
A propos de ce bien

Saint Didier sur Chalaronne centre ( 01140 ) Maison mitoyenne de 115 m 2 habitables en parfait état, rénovée donnant sur une terrase & jardin de 200 m2, toutes commodités, commerces, cabinet médical, écoles accessibles à pied, transports, 12 mn de la gare SNCF de Belleville en Beaujolais.

Evoluant au coeur d'une commune conviviale, idéalement conçue, située dans un secteur préservé et priviliégé.

Cette belle maison combine espace, lumière et tranquillité, les deux niveaux ont été rénovés en 2023 avec soin.

Elle se compose:

Au premier niveau :

Dès le hall d'entrée passé, vous arriverez sur un bel espace de vie de 43 m 2 environ baigné de lumière vous offrant de belles perspectives sur la terrasse et le jardin.

Vous profiterez d'une cuisine de belle facture, ouverte , équipée vous invitant à la convivialité.

Au même niveau, un bureau de 9 m 2, nous pouvons imaginer une troisième chambre.


Au second niveau :

Deux très belles chambres parfaitement distribuées & agencées, une de 23 m 2 avec dressing, une seconde de 12 m 2.

De part la conception, ces espaces sont très esthétiques.

Une salle d'eau et wc en parfait état.


Les extérieurs :

Un jardin qui peut être optimisé avec des végétaux, un éventuel bassin.

Pour votre confort :

Pompe à chaleur individuelle, économique & écologique.

Ce que nous avons aimé:

Une surface de 115 m 2 sur deux niveaux parfaitement optimisée en parfait état, pas de travaux à prévoir.

Pompe à chaleur réversible, bien entièrement rénové en 2023.

Idéalement situé.

Tarif : 259 000 € honoraires inclus à la charge du vendeur.

Pour une visite, des informations, contactez David BENOIT o6 74 59 2o 76 agent commercial Bureau Sully.

Les informations sur les risques auxquels ce bien est exposé sont disponibles sur le site.

Géorisques: www.géorisques.gouv.fr

Descriptif de ce bien
Général
Code postal 69220
surface terrain 200 m²
Nombre de chambre(s) 2
Nombre de pièces 4
Nombre de niveaux 2
Détails
Nb de salle d'eau 1
Cuisine Américaine
Type de cuisine Equipée
Mode de chauffage Pompe à chaleur
Type de chauffage Convecteur
Format de chauffage Individuel
Terrasse OUI
Murs mitoyens 2
Année de construction 1997
Terrain piscinable OUI
Composition
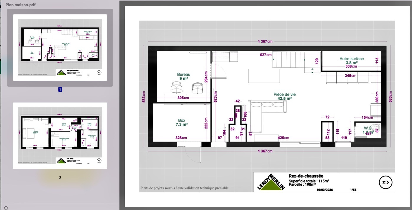
Rez de chaussée
pièce à vivre 43 m2 m²

Belle pièce de vie de 43 m 2 très lumineuse donnant sur le jardin

chambre 23 m2 m²

salle de bain 8 m 2 m²

cellier 4. 9 m 2 m²

Box extérieur 7. 3 m 2 m²

chambre

WC

bureau 9 M2 m²

Eventuelle 3 ème chambre

chambre 12 m2 m²

WC

Financier
Prix de vente 259 000 €
Les honoraires d'agence seront intégralement à la charge du vendeur  
Taxe d'habitation 487 €
Energie
DPE GES
Autour du bien
  • Commerces et santé
  • Loisirs
  • Ecoles
  • Transports
  • Pratique
Contacter pour ce bien
L'agence

Guillaume TAMBON


Téléphone 06 30 77 29 48
Adresse
129 rue Vendome 69006 Lyon

Julien DUVERT


Téléphone 006 18 64 52 32
Adresse
129 rue Vendome 69006 Lyon

* Champ obligatoire

Les informations recueillies sur ce formulaire sont enregistrées dans un fichier informatisé par La Boite Immo agissant comme Sous-traitant du traitement pour la gestion de la clientèle/prospects de l'Agence / du Réseau qui reste Responsable du Traitement de vos Données personnelles. La base légale du traitement repose sur l'intérêt légitime de l'Agence / du Réseau. Elles sont conservées jusqu'à demande de suppression et sont destinées à l'Agence / au Réseau. Conformément à la loi « informatique et libertés », vous disposez des droits d’accès, de rectification, d’effacement, d’opposition, de limitation et de portabilité de vos données. Vous pouvez retirer votre consentement à tout moment en contactant directement l’Agence / Le Réseau. Consultez le site https://cnil.fr/fr pour plus d’informations sur vos droits. Si vous estimez, après avoir contacté l'Agence / le Réseau, que vos droits « Informatique et Libertés » ne sont pas respectés, vous pouvez adresser une réclamation à la CNIL. Nous vous informons de l’existence de la liste d'opposition au démarchage téléphonique « Bloctel », sur laquelle vous pouvez vous inscrire ici : https://www.bloctel.gouv.fr Dans le cadre de la protection des Données personnelles, nous vous invitons à ne pas inscrire de Données sensibles dans le champ de saisie libre.
Ce site est protégé par reCAPTCHA, les Politiques de Confidentialité et les Conditions d'Utilisation de Google s'appliquent.

Découvrir nos outils